土地
笠間市南友部
この物件のお支払い例 頭金/ボーナス払い0円 頭金0円
- 物件価格
- 700万円
- 月々の支払い
(初回お支払額)
-
{{ monthlyPayment?.toLocaleString() }}円
※上記支払例の借入条件:金利{{ loanInterestRate }}%、借入総額700万円(うちボーナス払い{{ loanBonusMan }}{{ loanBonusUnit }}円)、借入期間{{ loanTerm }}年、{{ loanPaymentMethodName }}返済方式、ボーナス支払額(初回){{ bonusPayment?.toLocaleString() }}円
支払いシミュレーション
- 万円
- 万円
- %
- 万円
| ボーナス払い | {{ loanTerm }}年 |
|---|---|
| 0万円 | |
| 5万円 | |
| 10万円 | |
| 15万円 | |
| 20万円 | |
| 25万円 | |
| 30万円 | |
| 35万円 | |
| 40万円 | |
| 45万円 | |
| 50万円 |
× 閉じる
所在地・交通
| 所在地 | 茨城県笠間市南友部 | ||
|---|---|---|---|
| 交通 |
JR水戸線 友部駅 徒歩13分 (1040m) |
その他交通 | |
| 小学校校区 | 中学校校区 | ||
※学校区は住所から自動判定したものであり、保証できる情報ではございません。正確な学校区はお問い合わせ下さい。
「人型アイコン」を地図上にドラッグすることで『Google ストリートビュー』に切り替わります。
※地図上の「対象地」は「茨城県笠間市南友部 」付近を示しています。実際の場所ではない場合がございます。詳しくはお問い合わせください。
物件概要
| 価格 |
700万円
|
種目 | 売地 |
|---|---|---|---|
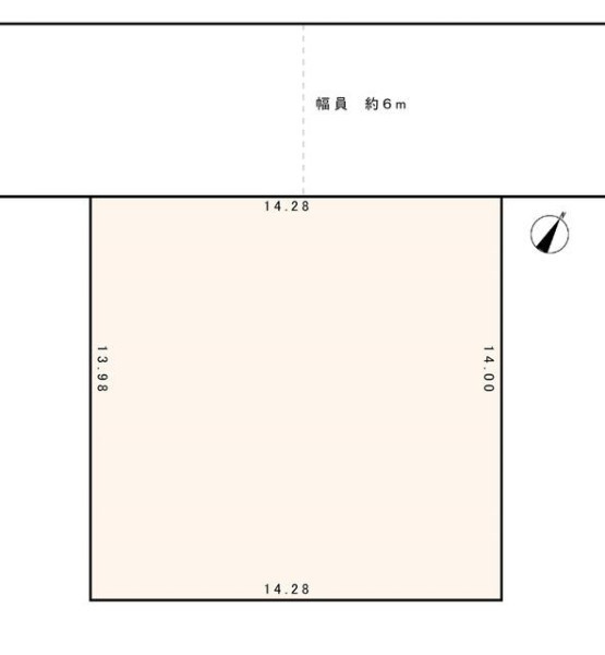
| 土地面積 | 200.04㎡(公簿) | 私道面積 | 私道負担面積無 |
| 総戸数・総区画数 | 販売戸数・販売区画数 | ||
| 接道状況 | 北西 間口14.2m 公道 幅6m | ||
| 地目 | 宅地 | ||
| 建ぺい率/容積率 | 60% / 200% | 都市計画 | 非線引区域 |
| 土地権利 | 地勢 | ||
| 最適用途 | 住宅用地 | ||
| 用途地域 | 第一種住居 | 国土法 | |
| 現況 | その他 | 取引態様 | 媒介 |
取引条件等
| 引渡し | 相談 |
|---|
その他
| 条件等 | |||
|---|---|---|---|
| 設備 | プロパンガス、上水道、下水道、側溝 | ||
| 特徴 | |||
| 諸条件・相談 | |||
| 情報登録日 | 2026年1月23日 | 情報更新予定日 | 2026年5月8日 |
| 物件番号 | 845926 | ||
