中古住宅専門店いばらき厳選おすすめ物件東茨城郡茨城町

東茨城郡茨城町

要予約

東茨城郡茨城町

販売価格:
2,600万円

毎日の暮らしをもっと快適に。家事ラク動線と豊富な収納が叶える、家族みんなが過ごしやすい住まいです。

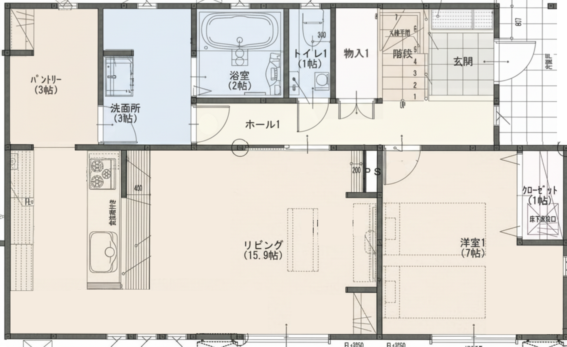
キッチンから水回りまでを一直線に配置した無駄のない家事動線が、忙しい毎日の家事をスムーズにサポートします。洗面室や浴室への移動もスムーズで、朝の支度や洗濯動線も快適に。約16帖の吹抜けリビングは明るく開放的で、家族の会話が自然に生まれる心地よい空間です。キッチン横のパントリーや玄関収納など、使う場所に合わせた収納計画も魅力で、住まい全体がすっきりと整います。2階には6帖の洋室を2部屋設け、子ども部屋や書斎などライフスタイルに合わせて自由に活用でき、日々の暮らしを快適に支える工夫が詰まった実用性と居心地を兼ね備えた住まいです。ぜひ一度ご見学ください。
※11月中旬より見学可能予定です

間取り
Floor plan

来店予約キャンペーン

物件詳細
Detail

所在地
東茨城郡茨城町大字前田
間取り
3LDK
築年数
1979年10月
竣工年月
-
土地面積
231.25㎡
工事費
-

アクセス
Access

この物件の見学予約はこちらから

    見学希望物件
    ご来店希望日
    ご来店希望時間

    ※ご来店希望日の後に選択してください。

    お名前 (全角)
    お電話番号 (半角数字)
    メールアドレス (半角英数字)
    ご意見・ご質問等

    ※その他、ご質問等あればご記入ください

    残り220文字

    個人情報の保護について
    ※当フォームのご利用にあたっては、「個人情報保護方針」にご同意いただく必要があります。
    ご同意いただける場合は、上記の「同意する」にチェックをつけたうえでご利用ください。

    ※送信内容確認の画面は表示されませんので、
    ご注意ください。

    ページの先頭へ